.前言
应急照明是建筑物的重要安全设施。当建筑物发生火灾或其他灾难电源失电时,应急照明对人员疏散、消防救援工作,对重要的生产、工作的继续运行或必要的操作处置,都有重要的作用。地铁车站属于人员密集型场所,尤其地下车站发生火灾或其他灾害时,须保持足够的地面疏散照度,确保人员安全、有序逃离灾害场所。为了合理设计消防应急照明和疏散指示系统,保证消防应急照明和疏散指示系统的施工质量,确保系统正常运行,2019年3月,住建部发布并实施了GB51309一2018《消防应急照明和疏散指示系统技术标准》。由于该规范中相关要求在地铁领域尚无借鉴案例,出现了各建设方及设计单位对规范理解不一致的情况。笔者以规范条文作为基本依据,结合实际地铁应急照明及疏散指示设计经验,对该系统进行了深人研究,提出了可行性解决方案。
1.应急照明定义及分类
GB50034-2013《建筑照明设计标准》明确指出:应急照明是因正常照明的电源失效而启用的照明。应急照明包括疏散照明、安全照明和备用照明。疏散照明是用于确保疏散通道被*地辨认和使用的应急照明。安全照明是用于确保处于潜在危险之中的人员安全的应急照明。备用照明是用于确保正常活动继续或暂时继续进行的应急照明。
2.消防应急照明和疏散指示系统的定义
2.1应急照明及疏散指示设置原则
GB51309一2018《消防应急照明和疏散指示系统技术标准》对“消防应急照明和疏散指示系统定义为:为人员疏散和发生火灾时仍需工作的场所提供照明和疏散指示的系统。
GB51309一2018《消防应急照明和疏散指示系统技术标准》指出:避难间(层)及配电室、消防控制室、消防水泵房、自备发电机房等发生火灾时,工作、值守的区域应同时设置备用照明、疏散照明和疏散指示标志。
所有备用照明灯具、疏散照明灯具和疏散指示标志应符合现行标准GB17945《消防应急照明和疏散指示系统》和GB13495《消防安全标志》的规定,应取得CCCF消防认证证书,满足地方消防部门的相关要求。
2.2备用照明设置原则
(1)在车站站厅、站台两端配电室内各设一组EPS,为车站内备用照明提供电源。
(2)消防泵房、车站控制室、综合监控室、通信设备室、信号设备室、AFC设备室、变电所、配电室、UPS蓄电池室、UPS设备室、环控电控室、警务室、气瓶间、排烟机房、风机房和风道等场所均应设置备用照明。
(3)根据不同的用途,附属房间的备用照明占正常照明的10%-100%。
(4)备用照明灯具壁装或吊装时,灯具底边距装修完成面3m。楼梯间的正常照明灯具采用壁式安装,灯具底边距装修完成面一般为2.7m。
2.3疏散照明及疏散指示
(1)车站设置集中控制型消防应急电源和疏散指示系统。系统的主机设置在车站控制室内;集中电源设置在照明配电室内。
(2)在车站站厅、站台、出入口通道、楼梯和附属用房区的通道等处设置疏散照明和疏散指示标志灯。
(3)配电室、车控室和变电所高低压室等发生火灾时,工作、值守的区域应同时设置备用照明、疏散照明和疏散指示标志。
(4)设置气体灭火的房间均在门口设置安全出口标志灯。
(5)车站附属房间、设备区走道的A型应急照明灯具(不含疏散指示标志)采用壁式安装时,灯具底边距装修完成面2.5m。梯间的A型应急照明灯具(不含疏散指示标志)采用壁式安装,灯具底边距装修完成面一般为2.4m。
(6)安全出口标志灯安装高度为距装修完成面2.2-2.5m,在门上方安装时,底边距门框0.2m,若门上无法安装,在门旁墙上安装,疏散指示标志灯安装高度为距装修完成面0.5m,并人墙内。疏散指示标志安装间距不大于10m;在走道转角区不应大于1.0m。
照度标准值见下表

2.4应急照明及疏散指示系统方案
应急照明的负荷分级及配电方式应急照明为*负荷中特别重要的负荷。其中备用照明采用双电源加EPS的配电方式,疏散照明和疏散指示由“消防应急照明和疏散指示系统”的集中电源配电。车站应急照明电源系统应保证事故情况下电池持续工作90min的用电要求。
2.5备用照明系统方案
(1)在车站站厅、站台两端配电室内各设一组EPS,为车站内备用照明提供电源
(2)EPS输人电源(主用和备用)分别由车站降压变电所不同母线各引一回路至应急照明电源室。两路交流电源采取一主一备方式运行,双电源转换装置及进线断路器在EPS柜内一体化安装。
(3)备用照明供电系统由充电机、蓄电池组逆变器、自动切换装置及交流配电屏组成。正常情况下,蓄电池处于浮充状态,备用照明负荷正常状态时由AC220V/380V电源供电。事故状态下自动切换装置动作,由蒂电池组通过逆变器以AC220V/380V电源供电。
(4)车站环境与设备监控系统(BAS)对本站备用照明电源系统运行状态、故障状态进行监视。监视内容包括主备电源运行状况,电池工作状态和故障状态(如输入电源故障、逆变器故障、充电器故障、电池故障、输出开路或短路及监控装置故障等)。
(5)车站备用照明电源系统应保证事故情况下蓄电池持续工作90min的用电要求。
(6)附属用房备用照明均采用就地控制,备用照明采用双控开关,在火灾时由FAS*进行强启
2.6疏散照明及疏散指示系统方案
车站设置集中控制型消防应急电源和疏散指示系统。系统的主机设置在车站控制室内:集中电源设置在照明配电室内:
2.6.1系统供电、配电及布线
(1)应急照明控制器由车控室的消防电源供电。
(2)疏散照明双电源切换箱两路电源分别取自降压所不同低压母线,两路电源一用一备,末端设置切换装置进行自动切换。
(3)应急照明集中电源由设置在照明配电室的疏散照明双电源切换箱供电。
(4)疏散照明灯具由应急照明集中电源供电。
(5)A型应急照明集中电源的输出回路不大于8路,每个回路的输出电流不大于6A,所带负不应超过额定容量的80%。
(6)A型集中电源的输出回路布线是通信线和电源线共管穿线。
2.6.2系统控制
(1)本系统应急灯具内部不设蓄电池,由集中电源供电,应急标志灯具为持续型,应急标志灯具采用A型灯具,工作电压≤DC36V,应急照明灯具为非持续型,采用A型灯具,工作电压≤DC36V。
(2)本系统应急灯具供电采用多台分散设置的集中电源,可避免过度集中设置,集中电源一旦发生故障,则会造成供电整体瘫痪的风险。
(3)控制器和集中电源均自带电池组,控制器蒂电池组初装应急时间不小于180min;集中电源都电池组初装应急时间不小于90min。
(4)本系统中消防应急标志灯处于节能点亮状态,消防应急照明灯灭灯,应急照明控制器对自身状态及集中电源和消防应急灯具的状态进行监视。
(5)系统联动。本系统主机与FAS主机可通过RS232接口,RS485接口或数字1/0接口进行联动,由FAS主机向本系统主机提供确认火警信息以联动本系统进人火灾应急工作模式。
(6)火灾时,应急照明控制器接收到火灾报警控制器的火灾报警输出信号后,自动执行以下控制操作:@控制系统所有非持续型应急照明灯点亮;2应急标志灯进人应急点亮状态:3需要改变指示方向的应急标志灯,可依据火灾或非火灾疏散模式改变指示方向。
(7)正常照明电源切除后,应急照明灯可快速启动点亮工作。
3.安科瑞消防应急照明和疏散指示系统选型方案
3.1系统概述
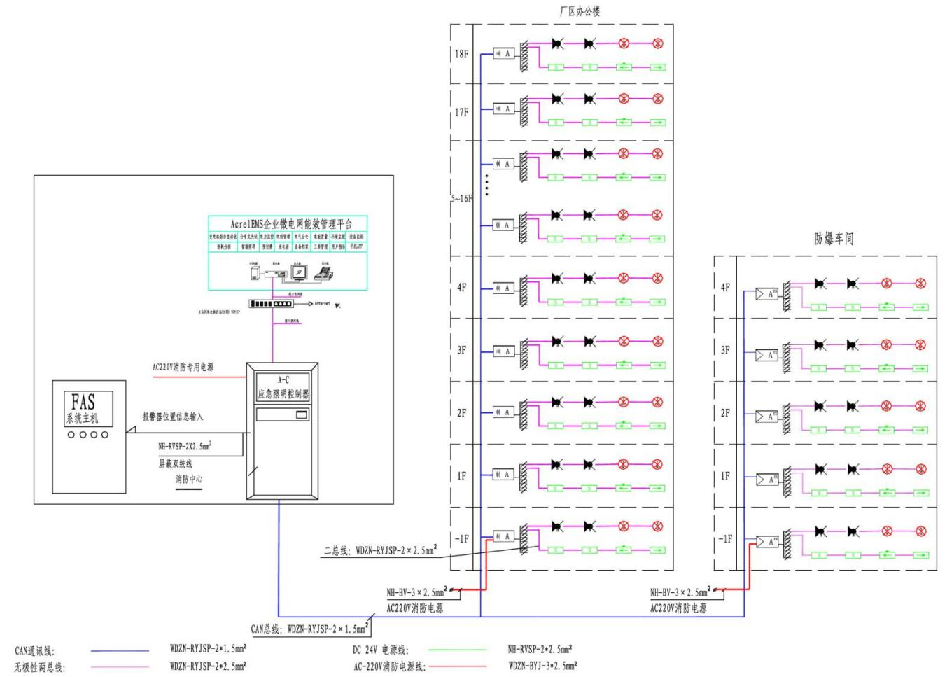
消防应急照明和疏散指示系统主要由应急照明控制器、消防应急照明集中电源或应急照明配电箱、消防应急灯具等几部分组成。符合现行的行业规范,可以满足与AcrelEMS企业微电网管理云平台或火灾自动报警系统等进行数据交换和共享。
该系统配合火灾报警控制器使用时,在平时对系统内的设备进行实时的监视和控制,便于日常的管理和维护,保障系统的稳定运行。基于此保证在火灾发生时,能够准确改变消防应急标志灯具的指示方向,点亮消防应急照明灯,帮助建筑内的人群选择逃生疏散路线,指引安全的逃生方向,保障群众的人身安全,为各类用户担心的安全问题解决了后顾之忧。
3.2应用场所
适用于住宅、酒店、办公楼、商城综合体、医院、隧道管廊、轨道交通、地库、仓库、工厂等各行业的消防应急照明和疏散指示系统。
3.3系统结构

3.4系统功能
3.4.1系统运行主界面
包含工具栏、平面展示、图层列表、状态栏,可以直观的查看监控设备的运行状态,并根据状态栏的现实内容直接切换至故障具体位置。

3.4.2灯具配置界面
可以查看所有灯具状态与数量。

3.4.3信息界面
可查看历史操作、故障、事件信息、可按日期进行查询。

3.4.4权限管理界面
主要由应急启动、应急停止与手动火警组成,应急启动与停止用来测试设备应急功能是否正常,手动火警测试再具体着火点下系统的启动情况。

4.结束语
虽然我国地铁建设的起步时间与西方相比要晚很多,但就地铁车站的应急照明来讲,目前我国技术人员已经对该项技术进行了整体把握与应用,且实际应用效果良好。随着交通压力的逐渐增长,还应进一步完善应急照明技术,*保证乘客的安全。
参考文献
.彭广文,叶仁欢.《基于新国标的地铁应急照明及疏散指示系统设计》[J]
.安科瑞企业微电网设计与应用手册2022.05版.
本文地址: https://www.xsyiq.com/52816.html
网站内容如侵犯了您的权益,请联系我们删除。